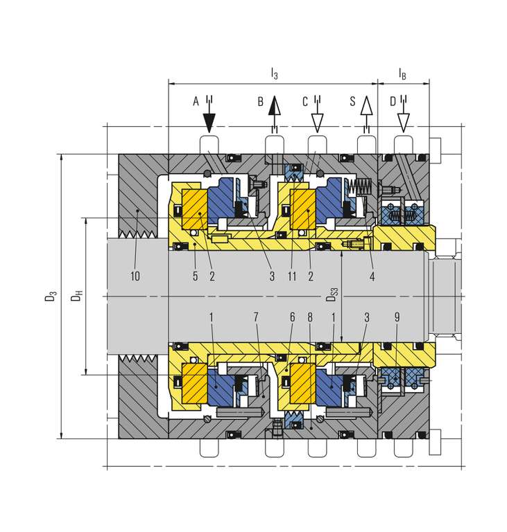
PDGS Tandem seal with intermediate labyrinth

A Primary seal gas supply
B Primary vent
C Secondary gas seal supply
S Secondary vent
D Separation gas supply

Item Description
1 Seal face, stationary
2 Seat, rotating
3 Thrust ring
4 Spring
5 Shaft sleeve and seat retainer
6 Intermediate sleeve
7, 8 Housing (size matched to installation space)
9 Separation seal (CSR)
10 Labyrinth
11 Intermediate labyrinth

Product links separation seals:
EagleBurgmann CSE
EagleBurgmann CSR
EagleBurgmann CobaSeal

PDGS

Features

  • Gas-lubricated
  • Uni-directional or bi-directional
  • Elastomer-free
  • Ready-to-fit cartridge unit
  • Single, double, tandem seal and tandem with intermediate labyrinth available
  • Separation seals as labyrinths, carbon rings or CobaSeal are optionally available

Advantages

  • Wear-free and contact-free operation
  • Self-cleaning 3D gas grooves
  • High gas film stiffness
  • Secure cupped retainer for seat
  • Available in various materials for optimized chemical resistance
  • Proven, reliable and economical solution

Operating range

Shaft diameter:
D = 24.5 ... 360 mm (0.96" ... 14.17")
Pressure (static and dynamic):
p = up to 650 bar (7.977 PSI)
Temperature:
t = -200 °C … +230 °C
(-328 °F … +446 °F)
Sliding velocity:
vg = up to 227 m/s (744 ft/s)

Materials

Seal face: Silicon carbide with DLC coating
Seat: Silicon carbide with DLC coating
Secondary seals: Polymer rings
Metal parts: 1.4006, 1.4313-QT650, Inconel® or other stainless steels.

Other materials on request.

Available also with EagleBurgmann DiamondFace technology.

Standards and approvals

  • NACE
  • API 617
  • Compliant to TA Luft (German Clean Air Act) (double seal, tandem seal)

Notes

A well-established compressor seal for high pressure and both low and high temperature applications. Innovative design features allow it to cope with even the highest pressures without problems. The application of U-cups and special dynamic sealing elements opens up a wide range of uses for this versatile and successful seal series.

Dimensions on request.



Product variants

PDGS10
The PDGS10 is the standard seal for high pressures up to 220 bar (3,191 PSI). Since many years the seal demonstrates their reliability worldwide in a wide variety of applications. It is characterized by very low leakage and sets the standard in the market for low-emission compressor gas seals.

Operating range
Shaft diameter:
d = 24.5 … 360 mm (0.96“… 14.17“)
Pressure (static): p = 0 … 220 bar (725 … 3.191 PSI)
Pressure (dynamic): p = 0 … 200 bar (725 … 2.901 PSI)
Temperature:
t= -50 °C … +230 °C (-58 °F … +446 °F)
Sliding velocity: vg = up to 227 m/s (744 ft/s)

Materials
Seal face: Silicon carbide with DLC coating
Seat: Silicon carbide with DLC coating
Secondary seals: Polymer rings
Metal parts: 1.4006 or other stainless steels
PDGS15
The PDGS15 series enable the sealing of very cold media up to -200 °C (-328°F) . Therefore special, cold-resistant steels are used. For years, these seals are successfully used in LNG liquefaction plants, for example.

Operating range
Shaft diameter:
d = 24.5 … 360 mm (0.96“… 14.17“)
Pressure (static and dynamic): p= 100 bar (1450 PSI)
Temperature:
t = -200 °C … +150 °C (-328 °F … +302 °F)
Sliding velocity: vg = up to 227 m/s (744 ft/s)

Materials
Seal face: Silicon carbide with DLC coating
Seat: Silicon carbide with DLC coating
Secondary seals: Polymer rings
Metal parts: 1.4313-QT650 or other stainless steels
PDGS51
The PDGS51 was developed for use in extreme high pressure applications. Adapted sliding faces and an innovative design of the shaft sleeve allow pressures up to 450 bar (6.525 PSI) and more. Most of these seals are successful in use in compressors for gas injection.

Operating range
Shaft diameter:
d = 85.5 … 173 mm (3.37“… 6.81“)
Pressure (static and dynamic): p = up to 650 bar (7.977 PSI)
Temperature:
t = -50 °C … +230 °C (-58 °F …+446 °F)
Sliding velocity:
vg = 0,6 …. 190 m/s (2 … 623 ft/s)

Materials
Seal face: Silicon carbide with DLC coating
Seat: Silicon carbide with DLC coating
Secondary seals: Polymer rings
Metal parts: 1.4006 or other stainless steels

Similar products

CobaDGS - Zero Emission Solution

The sealing solution for reduction of methane-/ process gas emissions
  • Gas-lubricated
  • Bi-directional
  • Ready-to-fit cartridge unit
  • Available for following seal arrangements: single and tandem
  • Co-axial primary seal
  • Separation seals as CobaSeal, carbon rings or labyrinths optional

DGS

  • Gas-lubricated
  • Uni-directional or bi-directional
  • Ready-to-fit cartridge unit
  • Single, double, tandem and tandem with intermediate labyrinth available
  • Separation seals as labyrinths, carbon rings or CobaSeal are optionally available

MDGS

  • Gas-lubricated
  • Bi-directional
  • Compact, radial design
  • Ready-to-fit cartridge unit, also available as a component seal
  • Single, double, tandem seal and tandem with intermediate labyrinth available
Contact

Inquire about individual solutions

We develop and produce customer-specific special and individual solutions for every application.

Inquire now Discover reference projects
Back to the overview